在建工地 / Under Construct

当前位置:首页 >在建工地 隆顺家园20#1901

热装楼盘Hot Property 在建工地Under Construct
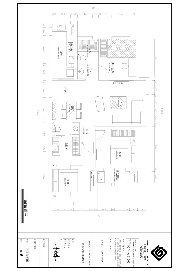
隆顺家园20#1901
发表日期:2017/3/19 11:21:20 浏览次数:

2017-3-8    开工大吉



2017-3-15    砌墙


2017-3-24    水电




户型图设计 


2017-3.30    泥工工程


2017-4-24    木工工程


相关工地:
上一篇:隆顺家园11#805
下一篇:隆顺家园2#1403
0574-86818681
联系我们